• Auftraggeber: Stadt Gernsheim
  • Fertigstellung: In Planung
  • Leistungsphase nach HOAI: 1 – 9
Beschreibung
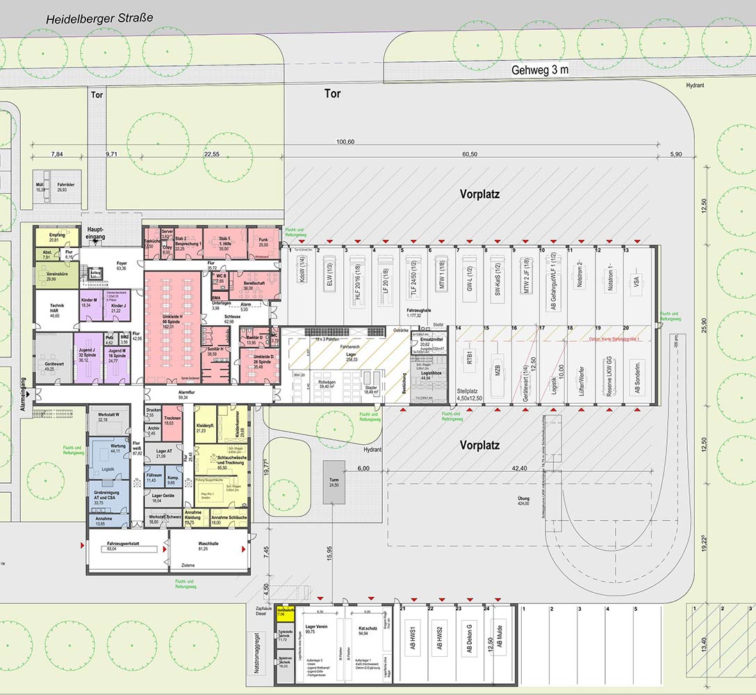
  • Feuerwache am Ortsrand für 12 Fahrzeuge, 7 Anhänger und 5 Abrollbehälter
  • 110 aktive Mitglieder, Jugend- und Kinderfeuerwehr sowie Feuerwehrverein
  • Erweiterbarkeit der Anlage für ein Gebäude des DRK
  • Besonderheit: Fast ebenes, großzügig bemessenes Grundstück