• Auftraggeber: Stadt Überlingen
  • Beendigung der Studie: 2023
Beschreibung

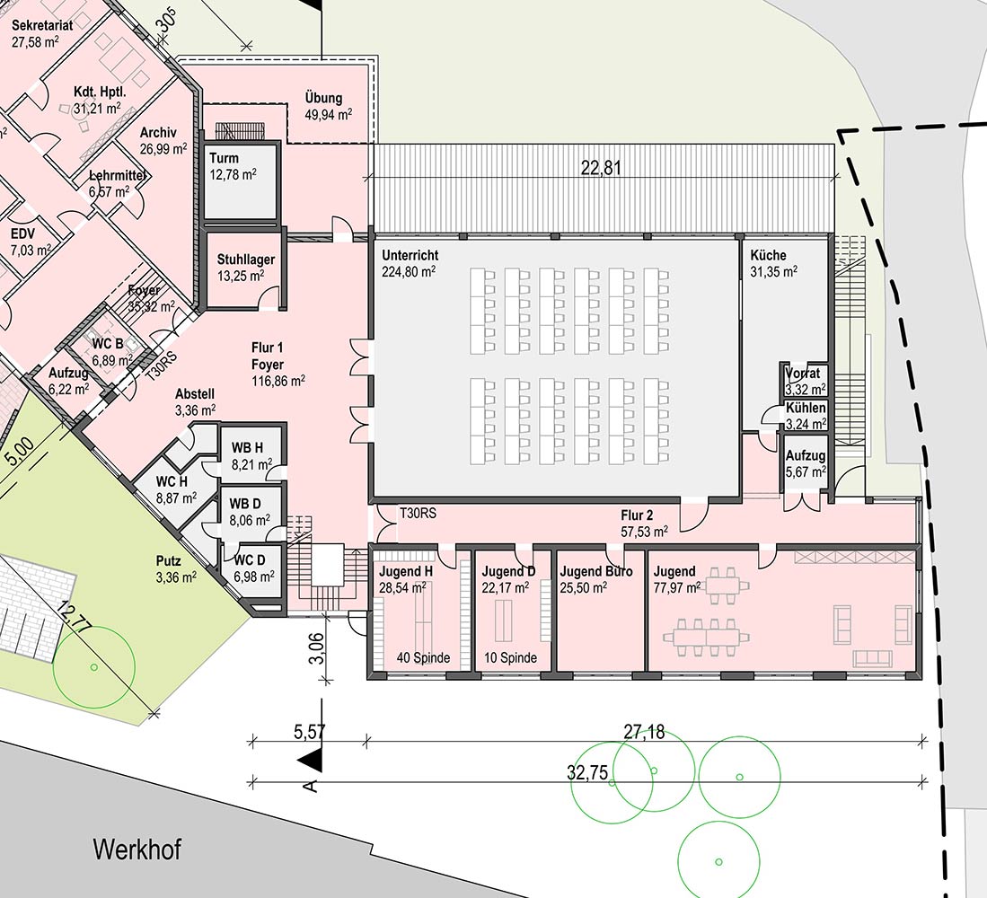
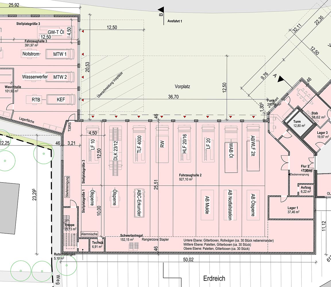
Die Stadt Überlingen hat 2021 einen neuen Feuerwehrbedarfsplan erstellt. Die Analyse der Situation zum gegebenen Zeitpunkt hat aufgezeigt, dass insbesondere das Gebäude in der Stadt Überlingen selbst eine Sanierung und Erweiterung benötigt. ARC Architekten hat mögliche Umbaumaßnahmen miteinander verglichen.

Ziele
  1. Vergrößerung der Flächen für Fahrzeuge, der Umkleiden, Werkstätten und Lager
  2. Zusammenfassung der inneren Abläufe (Verwaltung, Alarm, Schulung, Jugendfeuerwehr etc.)
  3. Schwarz-Weiß-Trennung in Werkstätten und Alarmbereich
  4. Möglichkeit für externe Veranstaltungen
  5. Möglichkeit der nachträglichen Erweiterbarkeit
  6. Flächen für PV-Anlage und Gründach
Konzept
  1. Abbruch der großen Fahrzeughalle
  2. Errichtung von zwei neuen Fahrzeughallen
  3. Verwaltung und Umkleiden im Obergeschoss
  4. Errichtung einer Parkplatzfläche auf dem Gelände des alten Werkhofs